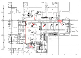
内視鏡センター内の検査室数を5室から7室に拡張したいとの相談を受け、限られたスペースの中でプランニングを行いました。
前処置室、リカバリーコーナー、洗浄コーナーを新たなコンセプトを持って計画し、内視鏡処置室の汎用性をカバーするためにモニターアームを導入しました。
事例紹介一覧昭和大学病院(東京都品川区)
※ このページは、当社が取り扱う製品やサービスに関する情報を、医療従事者の方に提供することを目的として作成されております。一般の方への情報提供を目的としたものではございませんのでご了承ください。
2014年3月 内視鏡センターの改修時にサポートさせていただきました。


〒142-8666 東京都品川区旗の台1-5-8
TEL:03-3784-8000
レイアウト

内視鏡処置室

パーテーション家具を活用することで各検査室に応じたスコープや処置具の準備、保管管理ができます。
洗浄室

不潔エリアとしてバックヤードからも動線を分けていますが、両手が塞がっている状態でもスタッフさんが運用しやすいシンク、洗浄機の配置としました。
オープンエリアでも換気設備を整えることで消毒薬などの臭いの対策をしています。
洗腸室

下部検査・処置は腸内洗浄液を飲んで腸内をきれいにしてから行いますが、排便がなかなか綺麗にならない方は追加で浣腸が必要な場合があります。そのためトイレを設置した部屋でベッドに横になってもらい処置を行います。
バックヤード

検査室とバックヤードはカーテンで仕切り患者のプライバシーにも配慮しています。
多くの症例をこなすためにスタッフの動線を最短距離で取っています。
カンファレンスルーム

ドクターの控え室でもあるカンファレンスルームでは内視鏡の症例映像をリアルタイムで配信しています。
これにより急変に対して即座に対応できたり、院内カンファレンスを行い、治療方針の検討などに活用しています。
事例紹介一覧
昭和大学江東豊洲病院(東京都江東区)

2014年3月 新病院開設時にサポートさせていただきました。
クリニック開設サポート
関内鈴木クリニック 内視鏡・消化器センター(横浜市中区)

2017年1月 新クリニック開設時にサポートさせていただきました。
大倉山こじまクリニック(横浜市港北区)

2014年2月 消化器内科・内科での新規ご開業のサポートさせていただきました。
はっとりクリニック(東京都目黒区)

2013年10月 内科・消化器内科での新規ご開業のサポートさせていただきました。
プランニング
昭和大学病院(東京都品川区)

2014年3月 内視鏡センターの改修時にサポートさせていただきました。
西船橋泌尿器科クリニック(千葉県船橋市)

2014年4月 ご開業 レイアウト作成、導入サポートをお手伝いさせていただきました。
設備・機器コーディネート
内視鏡専用手術室
埼玉県立がんセンター(埼玉県)

2013年12月 新病院移転において、ENDOALPHAソリューションの提案・導入サポートをさせていただきました。
モニターアーム

実際に導入いただいたご施設の紹介です。
映像ソリューション

実際に導入いただいたご施設の紹介です。
造作ユニット

実際に設計導入いただいたご施設の紹介です。
